DIJUAL RUMAH 2 LANTAI KOSONGAN TIPE X2 DI PARK SERPONG, LEGOK (JB240126)
Lokasi di Park Serpong, Legok
Spesifikasi Unit :
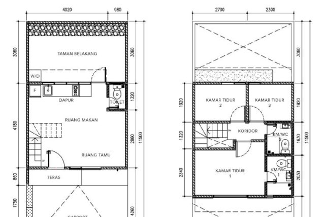
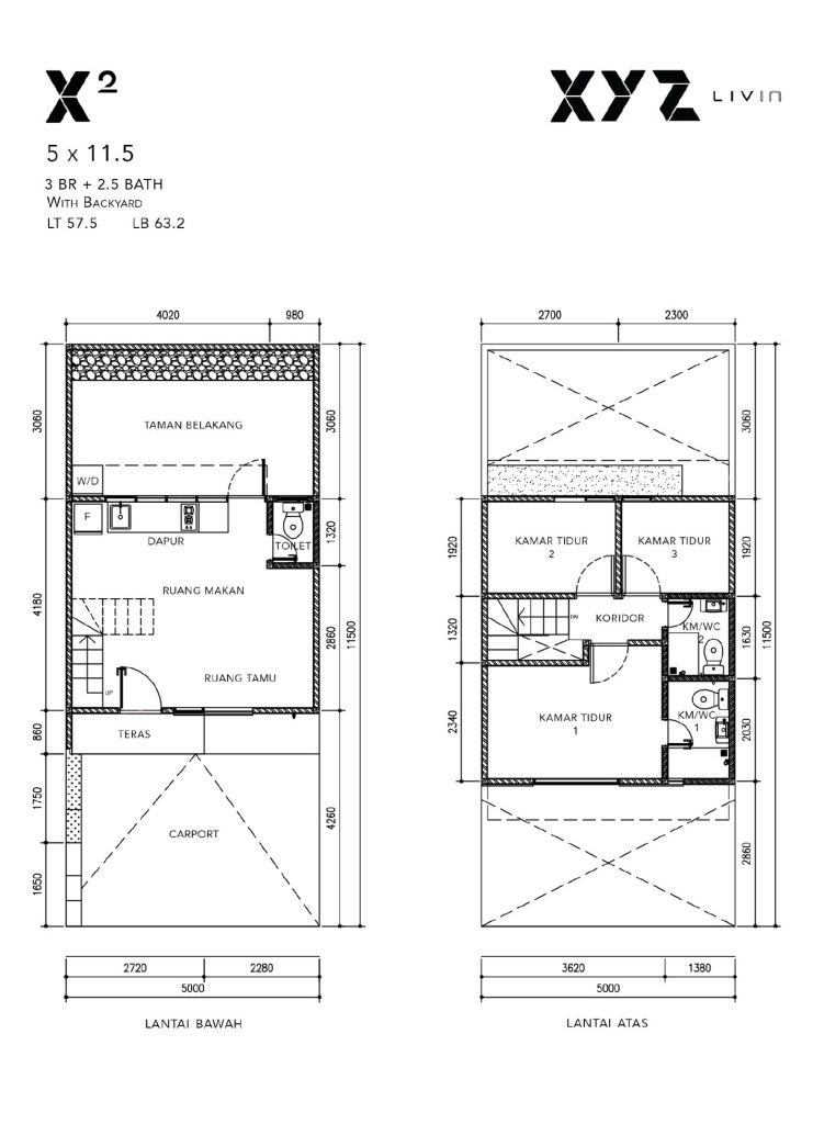
1. LT 57.5m2, LB 63.2m2 | 2 Lantai
2. 3 Kamar Tidur, 2.5 Kamar Mandi
3. Tipe X2, Kosongan
Harga Jual 750Jt
Rumah Chinida Properti menerima titip jual/beli/sewa properti Anda


